Станьте собственником дома своей мечты в срок от 3 месяцев!
Строим каркасные дома по индивидуальным проектам в ипотеку и за наличный расчет. Поможем с одобрением ипотеки, подбором земельного участка и составлением идеального проекта именно для Вас, ориентируясь на Ваши потребности и предпочтения.
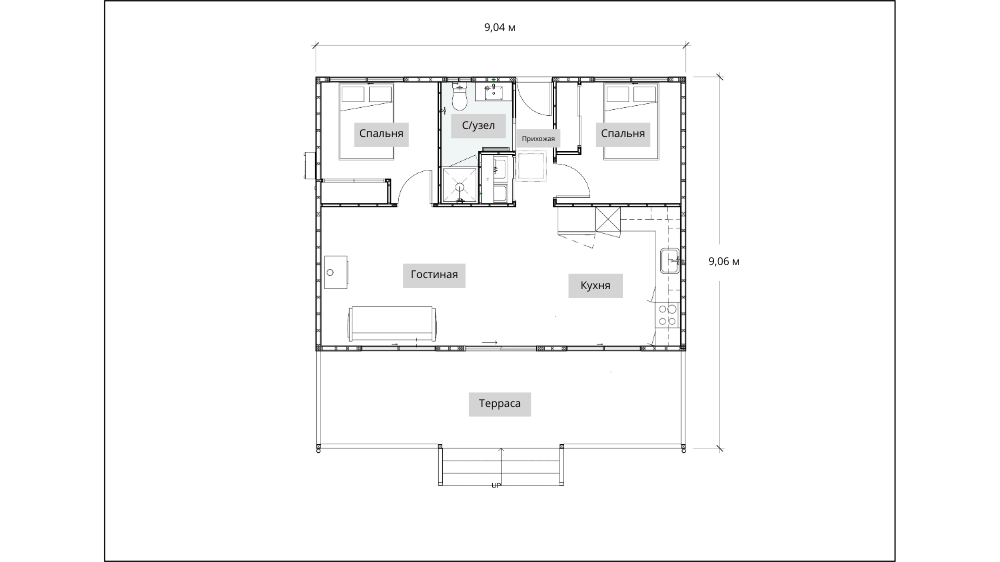
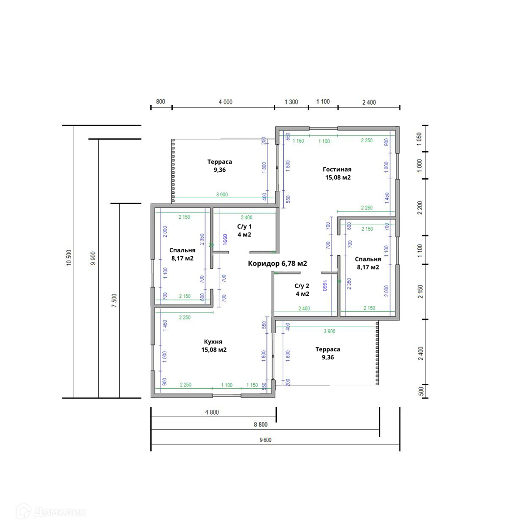
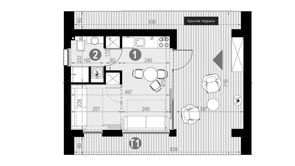
Максимальная открытость расчетов - просто откройте любой из представленных ниже проектов, чтобы наглядно увидеть, что входит в стоимость строительства и какие конфигурации оплачиваются дополнительно.
Нажимая на кнопку "Отправить", вы даете согласие на обработку персональных данных
и соглашаетесь c политикой конфиденциальности
